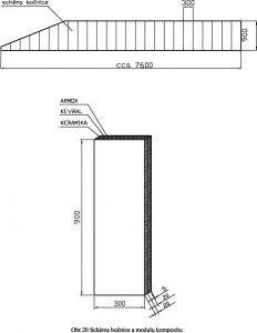
Je spracovaná analýza operačnej potreby, z čoho vyplynula požiadavka na vojenský materiál. Sú všeobecne uvedené výhody a nevýhody súčasného systému ochrany, ako aj požiadaviek na balistickú ochranu BVP 2. Je celkovo zhodnotený stav súčasnej obrnenej techniky a ochrany obrnených vozidiel na jednotlivých reprezentantoch bojových vozidiel pechoty vo svete, pričom sú uvedené a analyzované súčasne používané metódy ochrany panciera. Štúdia je zameraná na zvýšenie balistickej ochrany bojového vozidla pechoty BVP 2 dvoma spôsobmi: prídavným oceľovým homogénnym pancierom s hrúbkou platní Panciera 2 P, alebo ARMOX 500 minimálnou hrúbkou11 mm; kompozitovým viacvrstvovým pancierom na báze modulov. Na nosných duralových doskách na bokoch BVP 2 sa vyhotovia kazety do ktorých sa zasunú moduly zo základnej oceľovej dosky rozmerov 300 x 900mm hrúbky 5-6mm, na ktorej je prichytená vrstva vláknového kompozitu na baze KEVLARU, alebo sklolaminátu hrúbky 20- 40mm a tretiu vrstvu tvorí keramika AL2O3, SiC a iné) hrúbky 20-25mm. Perspektívne možno uvažovať, že druhá vrstva bude tvorená nanomaterálom, ako sú napr. uhlíkové nanorúrky alebo fulerény resp. to môžu byť nanesené rôzne nanovrstvy na oceľový pancier a pod. Veľmi významným sa javí návrh snímateľnej ochrany, bez podstatného zásahu do vlastnej konštrukcie BVP 2.
Modernizácia systému balistickej ochrany bojového vozidla pechoty BVP-2
